アパート コーポ勢東
情報更新日:2026-04-28
| 所在地 | 間取 | 価格 | 建物延面積 | 敷地面積 |
|---|---|---|---|---|
| 青森県 青森市 大野字若宮 | 2DK | 1,980万円 | 132.48㎡ | 397.25㎡ (公簿) |
大野若宮売アパート、幹線道路に近い立地です。
本物件の内容や画像等は全て現況優先とさせていただきます。各画像は参考図となります。
| 交通機関 | バス 大野十文字バス停徒歩5分 | ||
|---|---|---|---|
| 学区 | 大野小学校(0.9km)・甲田中学校(0.9km) | ||
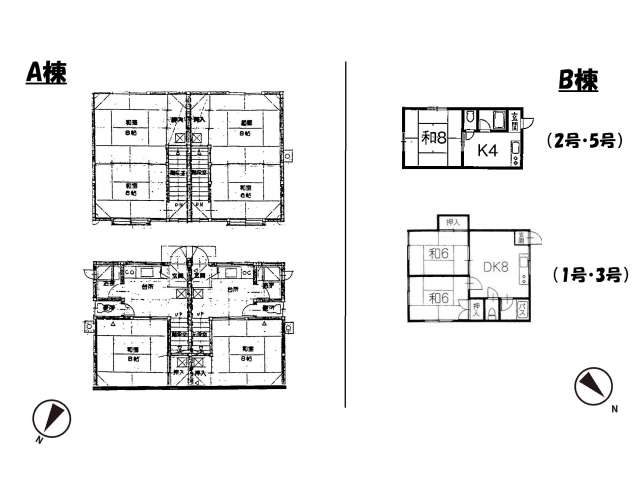
| 詳細間取 | 2DK (和6帖×2、DK8帖、住戸の専有面積:41.32~41.32㎡) | ||
| 周辺施設 | |||
| 周辺環境 | その他費用 | ||
| 総戸数 | 6戸 (事務所部分無) | 建物構造 | 木造 |
| 築年月 | 昭和61年12月 | 主要採光方向 | 不明 |
| 駐車場 | 敷地内 可 | 地勢 | 平坦 |
| 駐車場複数台 | 不可 | 土地権利 | 所有権 |
| 用途地域 | 第一種低層住居専用 | 国土法届 | 不要 |
| 取引態様 | 仲介 | 現況 | 賃貸中 |
| 引渡 | 他 (相談) | 借地料/借地期間 | ─ / ─ |
| 地目 | 宅地 | 都市計画 | 市街化 |
| セットバック | 無 | 接道状況 | 二方(公道・北側、公道・南側) |
| 私道負担 | ─ / ─ | ||
| 法令上の制限 | |||
| 建ぺい率/容積率 | 50% / 80% | 管理 | 無 |
| 利回り | ─ / ─ | 修繕積立金 | |
| 設備 | バス(有 ) トイレ(洋式 独立 水洗) 上水道設備(公営) 下水道設備 給湯(電気) 洗面化粧台(独立) | ||
| 備考 | A棟→3K(1階:和室8帖、2階:和室6帖・8帖)×2室※メゾネットタイプ。B棟→2DK(DK8帖、和室6帖×2)×2室、1K(K4帖、和室8帖)×2室。計6室中5室入居中(令和7年9月現在、1Kタイプ1室募集中)、現在家賃収入:203,000円(年収2,436,000円)、満室時年収:2,760,000円(年間利回り13.93%)。敷金別途引継ぎ、現況有姿の引渡しとなります。 | ||
| 取扱業者 |
日本住宅販売㈱ 青森県知事免許(6)第2913号 青森県青森市小柳3丁目4番20号 TEL:017-765-2010 FAX:017-741-3021 (公社)青森県宅地建物取引業協会会員 東北地区不動産公正取引協議会加盟事業者 |
||






